Overview
2 Bedroom Flat for sale in The Boulevard, Cowglen, G43
1
2
1
Key Features:
- Open plan kitchen/living room
- Close to M77 motorway links
- Minutes from Pollock Country Park
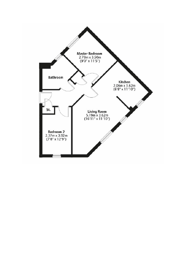
Property Matters Online are delighted to present to the market "The Fleming". This two-bedroom, ground-floor apartment is suited to first-time buyers and young professionals. The easy layout includes an open-plan living room and kitchen, two bedrooms, a separate bathroom and fitted storage in the hall.
You'll enjoy living within easy reach of such a vibrant and exciting city centre – you'll certainly never be short of things to do. The Barrhead Road, the B762, runs close by the development before connecting with the M77 straight into the city. There's a train station at Kennishead and regular bus services too if you prefer not to drive. You don't ne...
Read more
Property Matters Online are delighted to present to the market "The Fleming". This two-bedroom, ground-floor apartment is suited to first-time buyers and young professionals. The easy layout includes an open-plan living room and kitchen, two bedrooms, a separate bathroom and fitted storage in the hall.
You'll enjoy living within easy reach of such a vibrant and exciting city centre – you'll certainly never be short of things to do. The Barrhead Road, the B762, runs close by the development before connecting with the M77 straight into the city. There's a train station at Kennishead and regular bus services too if you prefer not to drive. You don't need to head to the city centre for shopping as there are excellent options close to The Boulevard, including the Silverburn Retail Centre.
Just across the Barrhead Road you can step into the Pollok Country Park. This is a fantastic local green space and with a play park, country house, gardens and parkland, there's something for all the family to enjoy.
Room Sizes
LOUNGE 5.19m x 3.62m
KITCHEN 3.62m x 2.06m
BEDROOM 3.50m x 2.78m
BEROOM 3.92m x 2.37m
Read less
Important Information
- This is a Freehold property.